机密★启用前
2024年4月高等教育自学考试全国统一考试
房屋建筑学
(课程代码02394)
注意事项:
1.本试卷分为两部分,第一部分为选择题,第二部分为非选择题。
2.应考者必须按试题顺序在答题卡(纸)指定位置上作答,在试卷上无效。
3.涂写部分、画图部分必须使用2B铅笔,书写部分必须使用黑色字迹签字笔。
第一部分 选择题
一、单项选择题:本大题共15 小题,每小题1分,共15分。在每小题列出的备选项中只有一项是最符合题目要求的,请将其选出。
1.1972 年国际高层建筑会议按层数将高层建筑分为4类,其中第2类为
A.1~8层
B.9~16 层
C.17~25 层
D.26-40层
2.现行《建筑设计防火规范》将建筑物划分成4个耐火等级,其中一级承重墙的燃烧
性能和耐火极限分别为
A.非燃烧体、2.5 小时
B.非燃烧体、3.0 小时
C.难燃烧体、2.5 小时
D.难燃烧体、3.0小时
3.竖向基本模数的数列幅度为 1M 至
A.20M
B.24M
C.32M
D.36M
4.不同材料基础的刚性角是不同的,通常砖、石基础的刚性角控制在
A.18°~25°
B.26°~33°
C.34°~40°
D.41°~47°
5.地下室的所有墙体都必须设两道水平防潮层,一道设在地下室地坪附近,另一道设置在室外地面散水坡以上位置处
A.150~200mm
B.250-300mm
C.350~400mm
D.450~500mm
6.根据工程防水要求,防水层须高出最高地下水位
A.100~400mm
B.500~1000mm
C.1100-1400mmm
D.1500~2000mm
7.当地下室采用卷材防水层时,根据地下水的最大计算水头为3~6米,防水层的卷材层数应选用
A.6层
B.5 层
C.4层
D.3 层
8.不同的墙体具有不同的隔声指标,双面抹灰半砖墙的隔声量应不小于
A.32 分贝
B.38 分贝
C.45 分贝
D.40分贝
9.标准砖的规格是(厚x宽x长)
A.53mmx115mmx240mm
B.47mmx112mmx240mm
C.56mmx115mmx210mm
D.53mmx118mmx220mm
10.水平防潮层根据材料的不同,有油毡防潮层,在铺设油毡时,油毡之间的搭接长度应不小于
A.50mm
B. 60mm
C.70mm
D.40mm
11.沉降缝的宽度随地基情况和建筑物高度的不同而不同,地基情况为软弱地基,建筑物高度为6层以上时,沉降缝的宽度应大于
A.70mm
B.90mm
C.100mm
D.120mm
12.在多层钢筋混凝土框架结构中,建筑物高度在 15 米以及 15 米以下时防震缝的宽度为 70 毫米,当建筑物高度超过 15 米时,防震缝的缝宽应在 70 毫米的基础上增加。在抗震设防烈度为8度地区,现有一建筑高度为30米的钢筋混凝土框架结构,其防震缝的缝宽应为
A. 100mm
B. 140mm
C.150mm
D.170mm
13.防火墙的耐火极限应不小于
A.4.0 小时
B.3.5 小时
C.3.0 小时
D.2.5 小时
14.通常现浇钢筋混凝土楼板的挠度f应不大于(f为挠度,L为楼板的跨度)
A.L/50-L/90
B.L250~L.350
C.L/100-L/150
D.L/180-L/240
15.要保证楼板安放平稳,使板和墙、梁有很好地连接,首先需要有足够的搁置长度,一般要求板在墙上的搁置长度不小于
A.80mm
B.70mm
C.60mm
D.50mm
二、多项选择题:本大题共5小题,每小题2分,共10分。在每小题列出的备选项中至少有两项是符合题目要求的,请将其选出,错选、多选或少选均无分。
16.砂浆的强度以强度等级表示,下列属于砂浆强度等级的有
A.M₀.₅
B. M₁.₅
C.M₂.₅
D.M₇.₅
E.M₁₅
17.下列属于平天窗类型的有
A.三角形天窗
B.采光罩
C.采光板
D.采光带
E.井式天窗
18.以下选项属于构筑物的有
A.影剧院
B.水坝
C.蓄水池
D.办公楼
E.烟囱
19.观众厅的平面形状一般有
A.矩形
B.扇形
C.圆形
D.钟形
E.六角形
20.下列不适合建造多层厂房的工业有
A.冶金工业
B.食品工业
C.电子工业
D.重型机械制造工业
E.化学工业
第二部分 非选择题
三、填空题:本大题共 10 小题,每小题1分,共10分。
21.中国古建筑外形上最明显的特征表现在屋顶、屋身和________三部分,
22.建筑分类一般按建筑的使用功能、________和建筑的层数进行划分。
23.________是底层房间与土层相接的构件,它承受底层房间的荷载。
24.基础构造的型式随建筑物上部结构形式、荷载大小及________的变化而不同。
25.防水混凝土外墙与地坪板不宜太薄,一般外墙厚应大于 200毫米,地坪板的厚度应大于________毫米。
26.墙体按构造与施工方式不同,有叠砌式墙、版筑墙和________等几种。
27.梁端支承在墙上的长度每边不少于________毫米,以保证在墙上有足够的承压面积。
28.水平防潮层应设置在距室外地面________毫米以上的勒脚砌体中,以防止地表水溅渗。
29.常见的隔墙有块材隔墙、立筋隔墙和________。
30.墙面抹灰有一定的厚度,外墙一般为________毫米;内墙为15~20 毫米。
四、名词解释题:本大题共5小题,每小题3分,共15分。
31.踢脚线
32.材料找坡
33.屋顶排水组织设计
34.升板建筑
35.建筑工程设计
五、简答题:本大题共4小题,每小题5分,共20分。
36.简述建筑模数数列的适用范围。
37.简述建筑剖面设计的主要内容。
38.简述民用建筑设计中交通联系部分的设计要点。
39.简述砌块排列设计应满足的要求。
六、综合题:本大题共2小题,每小题 15分,共30分。
40.大板建筑中的阳台构件,采用单独预制的挑阳台板时,分别绘制出阳台板布置在纵向墙板上的构造做法以及阳台板布置在山墙板上的构造做法(构件采用钢筋混凝土材料,画出其锚固连接构造图,并在图上注明做法与文字说明)。
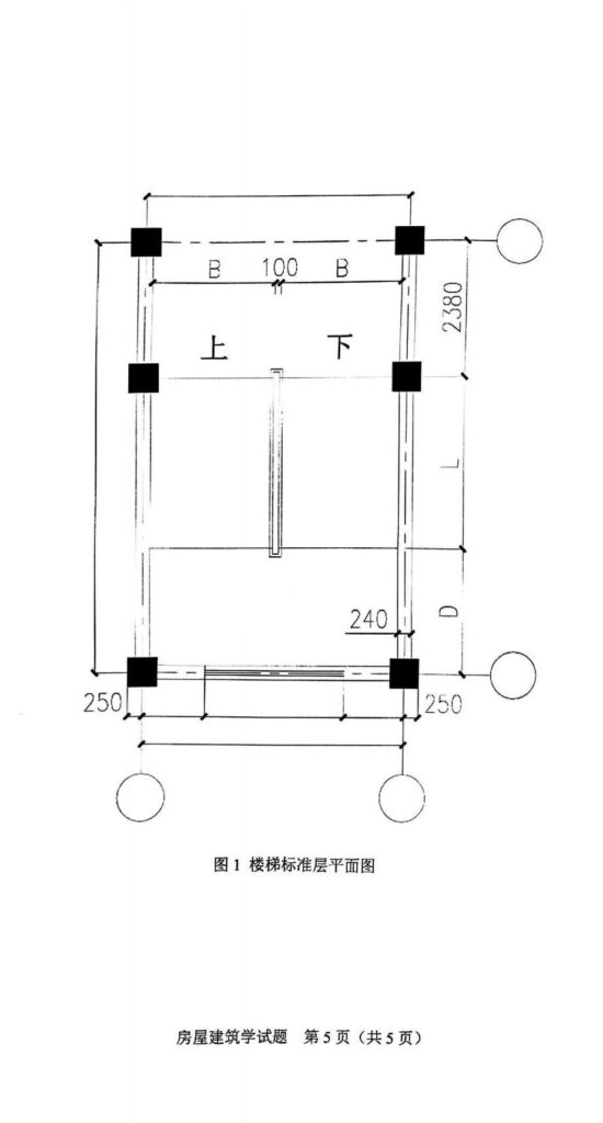
41.某五层住宅楼,层高4.2m,楼梯间开间尺寸(轴线编号1~2)4.5m,进深尺寸(轴线编号 A~B)7.5m,墙体厚度240mm,楼梯间窗宽 2.4m,拟设计一部钢筋混凝士板式双跑楼梯,梯井宽100mm,已知楼梯标准层平面相关尺寸如图1所示。
要求:
(1)确定楼梯踏步尺寸和梯级(4分);
(2)补绘楼梯标准层平面图(下图1)的梯段,确定梯段的宽度B、水平投影长度工以及休息平台宽度D等尺寸(11分)。
表1 常用楼梯适宜踏步尺寸
|
名称 |
踏步高/mmm |
踏步宽/mm |
|
住宅 |
156~175 |
260-300 |
|
学校、办公楼 |
140~160 |
280-340 |
|
剧院、会堂 |
120~150 |
300~350 |
|
医院(病人用) |
150 |
300 |
|
幼儿园 |
120~150 |
260-300 |

(2)本站自学考试信息供自考生参考,权威信息以各省(市)考试院官方为准。







暂无评论内容